Bilocale in vendita

Valentano, Via Carlo Alberto
€ 35.000
2 locali 2 locali
45 Mq 45 Mq
1 bagno 1 bagno

Bilocale in vendita

Valentano, Via Carlo Alberto

Descrizione annuncio

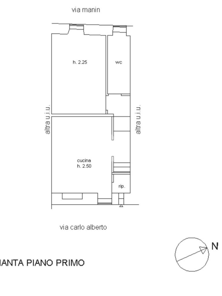
NEL CENTRO STORICO DI VALENTANO , IN VIA CARLO ALBERTO , PROPONIAMO IN VENDITA ABITAZIONE DI 45 MQ POSTA AL PIANO PRIMO .

CON INGRESSO INDIPENDENTE AL PIANO TERRA , L’IMMOBILE E ‘ COMPOSTO DA SOGGIORNO CON ANGOLO COTTURA E CAMINO , DISIMPEGNO , CAMERA DA LETTO MATRIMONIALE E BAGNO FINESTRATO CON DOCCIA .

OTTIMO STATO CONSERVATIVO GRAZIE ALLA RECENTE RISTRUTTURAZIONE , ABITABILE FIN DA SUBITO .

IL RISCALDAMENTO E’ AUTONOMO A GAS METANO , GLI INFISSI SONO NUOVI IN PVC .

L’ARREDO DELLA CUCINA E’ INCLUSO NELLA VENDITA .

COMODITA’ DI PARCHEGGIO GRATUITO NELLA PIAZZA POCO DISTANTE E VICINANZA AI PRINCIPALI SERVIZI .

VISITABILE PREVIO APPUNTAMENTO TELEFONICO .

Mostra tutto

Nelle vicinanze

Trasporto pubblico Trasporto pubblico
Piazza Diaz, Valentano
Piazza Diaz, Valentano
430 m
Valentano Crocefisso (dir. Valentano - Canino)
Valentano Crocefisso (dir. Valentano - Canino)
540 m
Scuole Scuole
Scuola elementare
470 m
Scuola Media
570 m
Farmacia Farmacia
Farmacia M. P. Bigiotti snc
170 m
Supermercati Supermercati
Pane Pizza E Dolci
130 m
Discount Hurrà (Sosty)
1,4 Km
Negozi Negozi
Detersivi e Bombole
150 m
Abbigliamento Fabiani
230 m
Idea Intimo Bruno & Liliana
370 m
Mondo Verde
420 m
Pasticceria Pizzeria Millevoglie
440 m
Bar Bar
Bar Il Tiglio - Solo Mesi Estivi
110 m
Centro Ricreativo Santa Lucia Filippini
150 m
Bar Trattoria Da Morena
150 m
Bar Rosati
200 m
Bar Tropicana
320 m
Ristoranti Ristoranti
Locanda La Voltarella
190 m
Agriturismo Monte Roio
580 m
Ristorante Pizzeria La Ciotola
820 m
Fantasia di Pizza
1,4 Km
Mostra tutto

Caratteristiche

Rif.:
61131400
Piano:
1 di 2 (Piano basso)
Camere da letto:
1
Arredamento:
Parziale
Condizionamento:
Assente
Ascensore:
No
Mostra tutto
Prezzo Prezzo
€ 35.000
Rata mutuo Rata mutuo
€ 166 / mese
Proponi il tuo prezzoProponi il tuo prezzo

Altre caratteristiche

Classe Energetica

G
G
G
G
G
G
G
G
G
EP invernale del fabbricato:
EP estiva del fabbricato:
Anno di costruzione:
1900
Riscaldamento:
Autonomo
Tipo impianto:
A radiatori
Tipo alimentazione:
Metano

Ti interessa visionare l'immobile?

Fissa un appuntamento  Fissa un appuntamento

Richiedi informazioni

Clicca su Leggi per aprire l'informativa
* Questi campi sono obbligatori

Calcola il tuo mutuo

Semplice e senza impegno
Anticipo

( % )
Mutuo

( % )

pochi semplici passi

inserisci i tuoi dati
Questionario completato
Grazie per aver richiesto un appuntamento senza impegno con un nostro Consulente del Credito e Assicurativo.

Hai inserito correttamente tutti i dati necessari e a breve riceverai una e-mail con un link da convalidare per inviare i tuoi dati.
Affiliato
Studio Fenice Srl
Via Marconi, 16 01018 Valentano (VT)

Il nostro staff


  • Roberto Chiodo
    Affiliato

  • Jessica Natali
    Coordinatrice

  • Marco Sarti
    Responsabile
Via Marconi, 16 01018 Valentano (VT)
Zona: Valentano
Mostra su mappa
Orari: Lunedì - Venerdì : 9.30-13:00 15:30- 20:00 Sabato : 9.30-13:00 15:30 -19:00
Affiliato
Studio Fenice Srl
Via Marconi, 16 01018 Valentano (VT)

2026 Tecnocasa Franchising S.p.A. - P. IVA 08365160152 - Via Monte Bianco 60/A 20089 Rozzano (MI). Ogni agenzia ha un proprio titolare ed è autonoma. Privacy policy | Policy utilizzo | Cookie policy