Quadrilocale in vendita

Onano, Via Camillo Benso Conte di Cavour
€ 30.000
4 locali 4 locali
80 Mq 80 Mq
1 bagno 1 bagno

Quadrilocale in vendita

Onano, Via Camillo Benso Conte di Cavour

Descrizione annuncio

Ad Onano , nella centralissima via Cavour , proponiamo in vendita in palazzetto storico appartamento in buono stato conservativo .

Ideale sia come abitazione di stabile residenza che come comoda casa vacanze , ha come pregi la posizione , la facilità di parcheggio e la vicinanza ai servizi .

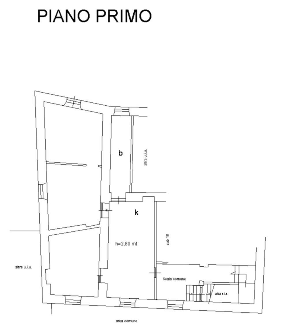
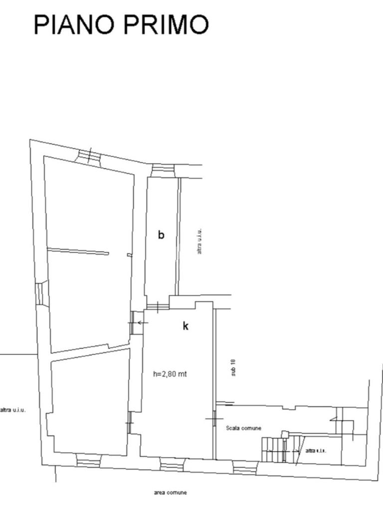
L’ appartamento è composto da ingresso , soggiorno con angolo cottura , salone , due camere da letto e bagno finestrato con vasca .

Possibilità di acquistare a poca distanza locale garage di 18 mq , al prezzo di € 5.000,00.

Visitabile previo appuntamento telefonico

Mostra tutto

Nelle vicinanze

Ricariche auto elettriche Ricariche auto elettriche
Monte Romano Campo sportivo | EnelX
410 m
MONTE ROMANO Via Abruzzo | ENELX
470 m
Supermercati Supermercati
Carrefour express
240 m
Negozi Negozi
Pasticceria Biscotteria Artigianale
230 m
Mostra tutto

Caratteristiche

Rif.:
61156456
Piano:
1 di 2 (Piano basso)
Box:
1
Camere da letto:
2
Arredamento:
Parziale
Condizionamento:
Assente
Mostra tutto
Prezzo Prezzo
€ 30.000
Prezzo box Prezzo box
€ 5.000
Rata mutuo Rata mutuo
€ 143 / mese
Proponi il tuo prezzoProponi il tuo prezzo

Altre caratteristiche

Classe Energetica

G
G
G
G
G
G
G
G
G
EP invernale del fabbricato:
EP estiva del fabbricato:
Anno di costruzione:
1900
Riscaldamento:
Assente

Ti interessa visionare l'immobile?

Fissa un appuntamento  Fissa un appuntamento

Richiedi informazioni

Clicca su Leggi per aprire l'informativa
* Questi campi sono obbligatori

Calcola il tuo mutuo

Semplice e senza impegno
Anticipo

( % )
Mutuo

( % )

pochi semplici passi

inserisci i tuoi dati
Questionario completato
Grazie per aver richiesto un appuntamento senza impegno con un nostro Consulente del Credito e Assicurativo.

Hai inserito correttamente tutti i dati necessari e a breve riceverai una e-mail con un link da convalidare per inviare i tuoi dati.
Affiliato
Studio Fenice Srl
Via Marconi, 16 01018 Valentano (VT)

Il nostro staff


  • Roberto Chiodo
    Affiliato

  • Jessica Natali
    Coordinatrice

  • Marco Sarti
    Responsabile
Via Marconi, 16 01018 Valentano (VT)
Zona: Valentano
Mostra su mappa
Orari: Lunedì - Venerdì : 9.30-13:00 15:30- 20:00 Sabato : 9.30-13:00 15:30 -19:00
Affiliato
Studio Fenice Srl
Via Marconi, 16 01018 Valentano (VT)

2026 Tecnocasa Franchising S.p.A. - P. IVA 08365160152 - Via Monte Bianco 60/A 20089 Rozzano (MI). Ogni agenzia ha un proprio titolare ed è autonoma. Privacy policy | Policy utilizzo | Cookie policy