Villa a schiera in vendita

Farnese, Via Cuzzoli e Cortellessa
€ 120.000
4 locali 4 locali
165 Mq 165 Mq
2 bagni 2 bagni

Villa a schiera in vendita

Farnese, Via Cuzzoli e Cortellessa

Descrizione annuncio

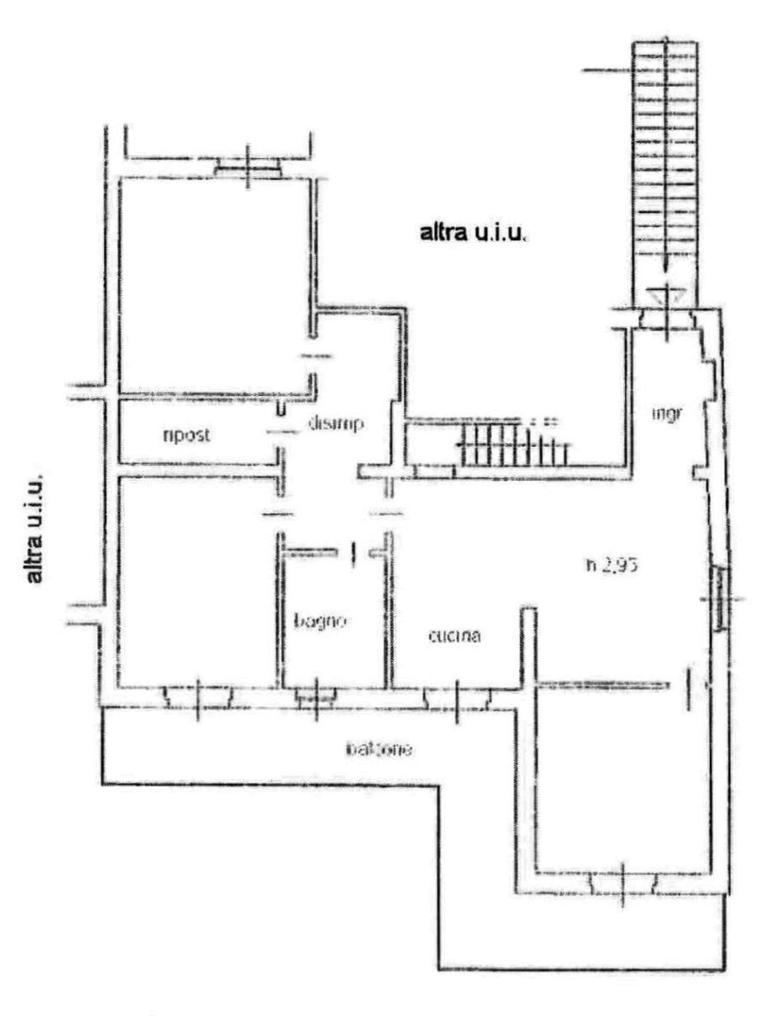
Nella tranquilla e riservata zona residenziale di Farnese, in via Cuzzoli e Cortellessa, proponiamo in vendita villetta a schiera con ingresso indipendente, situata al primo piano di un piccolo complesso abitativo di tre unità immobiliari.

L’abitazione, costruita a fine anni ’70 di complessivi 165 mq, è composta da salone con camino ed angolo cottura con balcone, tre camere da letto di cui due con condizionatori caldo/freddo e balcone, bagno finestrato con doccia e ripostiglio.

Al piano terra, accessibile anche da scala interna, caratteristica taverna con camino, bagno finestrato e locale tecnico con stufa a pellet idro.

Completano la proprietà garage e corte esterna comune di 670 mq, in parte pavimentata ed in parte piantumata.

Il riscaldamento è autonomo a GPL.

L’immobile si presenta in buono stato conservativo generale, l’arredo è incluso nella vendita.

Visitabile previo appuntamento telefonico.

Mostra tutto

Nelle vicinanze

Scuole Scuole
Scuole
250 m
Farmacia Farmacia
Farmacia
160 m
Negozi Negozi
Negozi
160 m
Bar Bar
Bar
100 m
Rokkabar
180 m
Ristoranti Ristoranti
Ristoranti
150 m
Piazzetta del Sole
250 m
Mostra tutto

Caratteristiche

Rif.:
61136885
Piano:
1 di 1 (Piano su più livelli)
Box:
1
Posti auto:
2
Balconi:
1
Camere da letto:
3
Mostra tutto
Prezzo Prezzo
€ 120.000
Rata mutuo Rata mutuo
€ 570 / mese
Proponi il tuo prezzoProponi il tuo prezzo

Classe Energetica

G
G
G
G
G
G
G
G
G
EP invernale del fabbricato:
EP estiva del fabbricato:
Anno di costruzione:
1975
Riscaldamento:
Autonomo
Tipo impianto:
A radiatori
Tipo alimentazione:
GPL

Ti interessa visionare l'immobile?

Fissa un appuntamento  Fissa un appuntamento

Richiedi informazioni

Clicca su Leggi per aprire l'informativa
* Questi campi sono obbligatori

Calcola il tuo mutuo

Semplice e senza impegno
Anticipo

( % )
Mutuo

( % )

pochi semplici passi

inserisci i tuoi dati
Questionario completato
Grazie per aver richiesto un appuntamento senza impegno con un nostro Consulente del Credito e Assicurativo.

Hai inserito correttamente tutti i dati necessari e a breve riceverai una e-mail con un link da convalidare per inviare i tuoi dati.
Affiliato
Studio Fenice Srl
Via Marconi, 16 01018 Valentano (VT)

Il nostro staff


  • Roberto Chiodo
    Affiliato

  • Jessica Natali
    Coordinatrice

  • Marco Sarti
    Responsabile
Via Marconi, 16 01018 Valentano (VT)
Zona: Valentano
Mostra su mappa
Orari: Lunedì - Venerdì : 9.30-13:00 15:30- 20:00 Sabato : 9.30-13:00 15:30 -19:00
Affiliato
Studio Fenice Srl
Via Marconi, 16 01018 Valentano (VT)

2026 Tecnocasa Franchising S.p.A. - P. IVA 08365160152 - Via Monte Bianco 60/A 20089 Rozzano (MI). Ogni agenzia ha un proprio titolare ed è autonoma. Privacy policy | Policy utilizzo | Cookie policy