Porzione di bifamiliare in vendita

Capodimonte, Str. Montecchio Scomparti
€ 295.000
4 locali 4 locali
180 Mq 180 Mq
2 bagni 2 bagni

Porzione di bifamiliare in vendita

Capodimonte, Str. Montecchio Scomparti

Descrizione annuncio

Sulle rive del Lago di Bolsena, nella zona residenziale di Capodimonte, in Strada Montecchio Scomparti , proponiamo in vendita porzione di Villa Bifamiliare di nuova costruzione con giardino.

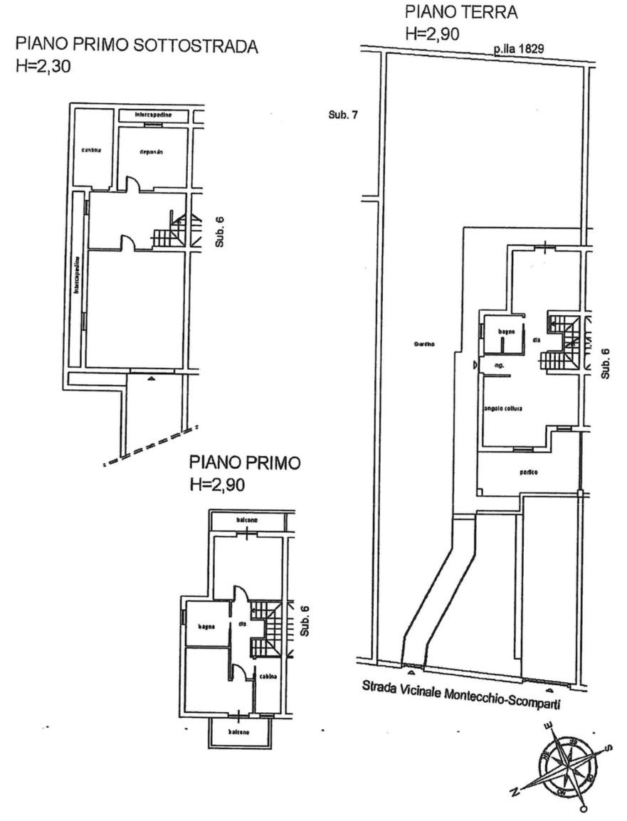
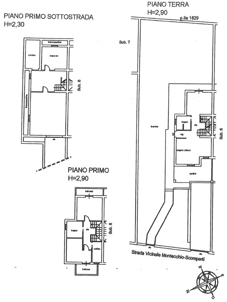
La villa , di complessivi 180 mq, è così composta:

Al piano terra soggiorno con angolo cottura, salotto , ripostiglio e bagno finestrato con doccia .

Al piano primo due camere matrimoniali , una cabina armadio , disimpegno , ripostiglio e bagno finestrato con doccia .

Al piano seminterrato garage doppio , taverna, locale tecnico, lavanderia e ripostiglio .

Completano la proprietà balconi con parziale vista lago , portico e curato giardino angolare di 250 mq con impianto di irrigazione .

Porzione di villa ultimata nell'anno 2021 , con ottima efficienza energetica grazie al pannello solare per la produzione di acqua calda sanitaria, al riscaldamento a pavimento , alle caldaie a pellet ed a GPL integrate , ai climatizzatori ed agli infissi in Pvc con triplo taglio termico con zanzariere .

Ottime finiture generali , immobile dotato di impianto di allarme .

Visitabile previo appuntamento.

Mostra tutto

Nelle vicinanze

Trasporto pubblico Trasporto pubblico
Trasporto pubblico
870 m
Scuole Scuole
Scuola Primaria
440 m
Supermercati Supermercati
Mercatissimo
160 m
Bar Bar
Bar del turista
2,3 Km
Ristoranti Ristoranti
Trattoria de la Jolanda
2,2 Km
da Otello
2,4 Km
Mostra tutto

Caratteristiche

Rif.:
61180705
Piano:
Su più livelli di 2
Totale piani:
2
Box:
1
Posti auto:
2
Balconi:
2
Mostra tutto
Prezzo Prezzo
€ 295.000
Rata mutuo Rata mutuo
€ 1.401 / mese
Proponi il tuo prezzoProponi il tuo prezzo

Classe Energetica

C
C
C
C
C
C
C
C
C
EP invernale del fabbricato:
EP estiva del fabbricato:
Anno di costruzione:
2021
Riscaldamento:
Autonomo
Tipo impianto:
A pavimento
Tipo alimentazione:
Altro

Ti interessa visionare l'immobile?

Fissa un appuntamento  Fissa un appuntamento

Richiedi informazioni

Clicca su Leggi per aprire l'informativa
* Questi campi sono obbligatori

Calcola il tuo mutuo

Semplice e senza impegno
Anticipo

( % )
Mutuo

( % )

pochi semplici passi

inserisci i tuoi dati
Questionario completato
Grazie per aver richiesto un appuntamento senza impegno con un nostro Consulente del Credito e Assicurativo.

Hai inserito correttamente tutti i dati necessari e a breve riceverai una e-mail con un link da convalidare per inviare i tuoi dati.
Affiliato
Studio Fenice Srl
Via Marconi, 16 01018 Valentano (VT)

Il nostro staff


  • Roberto Chiodo
    Affiliato

  • Jessica Natali
    Coordinatrice

  • Marco Sarti
    Responsabile
Via Marconi, 16 01018 Valentano (VT)
Zona: Valentano
Mostra su mappa
Orari: Lunedì - Venerdì : 9.30-13:00 15:30- 20:00 Sabato : 9.30-13:00 15:30 -19:00
Affiliato
Studio Fenice Srl
Via Marconi, 16 01018 Valentano (VT)

2026 Tecnocasa Franchising S.p.A. - P. IVA 08365160152 - Via Monte Bianco 60/A 20089 Rozzano (MI). Ogni agenzia ha un proprio titolare ed è autonoma. Privacy policy | Policy utilizzo | Cookie policy