Porzione di bifamiliare in vendita

Acquapendente, Via del Carmine
€ 269.000
Prezzo aggiornato
6 locali 6 locali
265 Mq 265 Mq
4 bagni 4 bagni

Porzione di bifamiliare in vendita

Acquapendente, Via del Carmine

Descrizione annuncio

Nel riservato ed elegante contesto residenziale di Acquapendente, in via del Carmine, proponiamo in vendita porzione di villa bifamiliare.

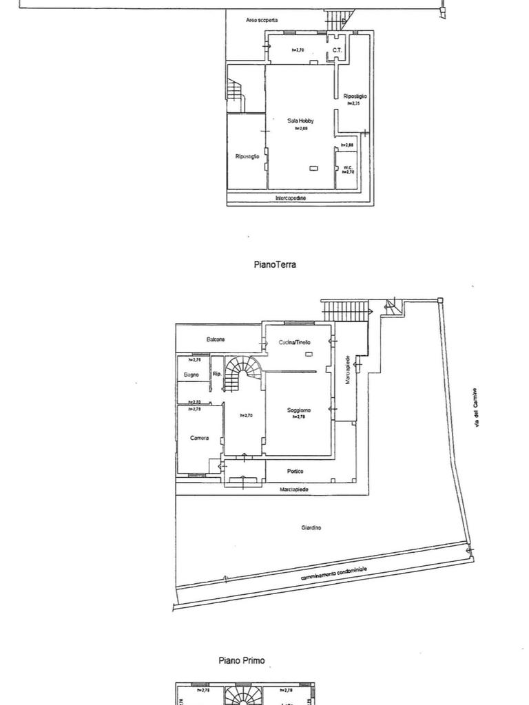
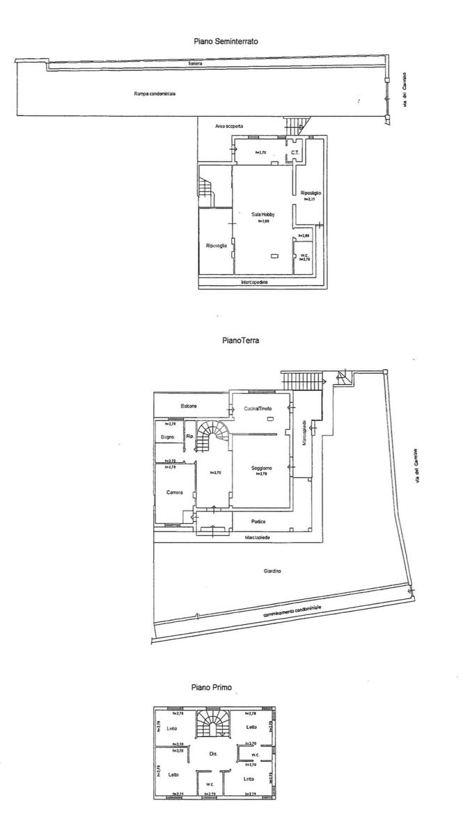
L’abitazione, costruita all’inzio degli anni 2000, di complessivi 265 mq, è così composta:

Al piano terra da salone, cucina abitabile con balcone, camera da letto, bagno finestrato con vasca e ripostiglio.

Al piano primo, quattro camere da letto e due bagni finestrati con doccia.

Al piano seminterrato taverna con angolo cottura e camino, bagno, due ripostigli e locale tecnico.

Completano la proprietà garage, autorimessa esterna e giardino privato angolare.

Il riscaldamento è autonomo a metano.

L’immobile si presenta in buono stato generale con finiture di pregio.

L’arredo è incluso nella vendita.

Visitabile previo appuntamento telefonico.

Mostra tutto

Nelle vicinanze

Trasporto pubblico Trasporto pubblico
Trasporto pubblico
1,1 Km
Ospedali Ospedali
Ospedale Santa Maria della Scala
1,1 Km
Pronto Soccorso Ospedale "Santa Maria della Scala"
1,1 Km
Supermercati Supermercati
Eurospar
270 m
EURO Spin
320 m
Coop
490 m
Negozi Negozi
Ottica Merli
680 m
Negozi
920 m
Alimentari Da Daniela
940 m
Alimentari da Daniele
940 m
Panificio Bisti
1,1 Km
Bar Bar
Bar
890 m
Bar Roma
940 m
Bar '97
990 m
Bar Natale
990 m
Gran Bar
990 m
Ristoranti Ristoranti
Ristorante Albergo Toscana
900 m
Ristorante il Buonumore
900 m
Bottega Maius
980 m
Il borgo ristorante Pizzeria
990 m
Lo Scarabeo
1,0 Km
Mostra tutto

Caratteristiche

Rif.:
61136191
Piano:
Su più livelli di 3
Totale piani:
3
Box:
1
Posti auto:
2
Balconi:
1
Mostra tutto
Prezzo Prezzo
€ 269.000
Rata mutuo Rata mutuo
€ 1.278 / mese
Proponi il tuo prezzoProponi il tuo prezzo

Classe Energetica

G
G
G
G
G
G
G
G
G
EP invernale del fabbricato:
EP estiva del fabbricato:
Anno di costruzione:
2004
Riscaldamento:
Autonomo
Tipo impianto:
A radiatori
Tipo alimentazione:
Metano

Prezzo ridotto di €1 (11%%)

Ti interessa visionare l'immobile?

Fissa un appuntamento  Fissa un appuntamento

Richiedi informazioni

Clicca su Leggi per aprire l'informativa
* Questi campi sono obbligatori

Calcola il tuo mutuo

Semplice e senza impegno
Anticipo

( % )
Mutuo

( % )

pochi semplici passi

inserisci i tuoi dati
Questionario completato
Grazie per aver richiesto un appuntamento senza impegno con un nostro Consulente del Credito e Assicurativo.

Hai inserito correttamente tutti i dati necessari e a breve riceverai una e-mail con un link da convalidare per inviare i tuoi dati.
Affiliato
Studio Fenice Srl
Via Marconi, 16 01018 Valentano (VT)

Il nostro staff


  • Roberto Chiodo
    Affiliato

  • Jessica Natali
    Coordinatrice

  • Marco Sarti
    Responsabile
Via Marconi, 16 01018 Valentano (VT)
Zona: Valentano
Mostra su mappa
Orari: Lunedì - Venerdì : 9.30-13:00 15:30- 20:00 Sabato : 9.30-13:00 15:30 -19:00
Affiliato
Studio Fenice Srl
Via Marconi, 16 01018 Valentano (VT)

2026 Tecnocasa Franchising S.p.A. - P. IVA 08365160152 - Via Monte Bianco 60/A 20089 Rozzano (MI). Ogni agenzia ha un proprio titolare ed è autonoma. Privacy policy | Policy utilizzo | Cookie policy